Обяви За нас Контакти
Продава 3-СТАЕН
град Пловдив, Гагарин
188 400 €
368 478.37 лв.

(1 557 €, 3 045.23 лв./m2)
Цената е с включено ДДС
История на цената
Публикувана в 16:19 на 9 февруари, 2026 год.
Обявата е посетена 29 пъти.
Площ:
121 m2
Етаж:
11-ти от 13
Строителство:
Тухла, Ще бъде въведен в експлоатация 2026 г.

Описание на имота:


Агенция TRIVIUM ESTATE представя тристаен апартамент за продажба в кв. Гагарин с гараж включен в цената🏢

🏙️Сграда и строителство

Aurora Residence е новострояща се сграда, изпълнявана с изключително високо качество на строителството и материалите. Проектът е с АКТ 14, като въвеждането в експлоатация е планирано за 2026 г. Сградата е на 13 етажа, с модерен облик, контролиран достъп и функционални общи части.

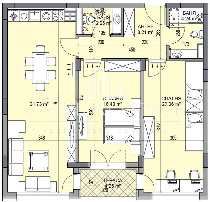
📐Площи и разпределение

Апартаментът е с чиста застроена площ от 121.47 кв.м, разположен на 11-ти етаж от 13, като не е последен.

Към имота има партерен гараж с площ 26.77 кв.м, включен в цената, с топла връзка към сградата, което значително повишава комфорта и практичността.

☀️Изложение, светлина и комфорт

Жилището е изцяло с южно изложение, което гарантира отлична естествена светлина през целия ден, по-висока енергийна ефективност и комфортна жилищна среда. Високият етаж осигурява усещане за простор и спокойствие.

Локация и инфраструктура

Имотът се намира в Гагарин - район с развиваща се инфраструктура, удобен градски транспорт и бърз достъп до основни пътни артерии. В близост са разположени търговски обекти, услуги, зелени площи и ежедневни удобства, което прави жилището подходящо както за живеене, така и за инвестиция.

Състояние и потенциал

Апартаментът се предлага на етап ново строителство АКТ 14, което дава възможност за завършване и интериорно оформление според индивидуалните предпочитания на бъдещия собственик. Имотът има отличен потенциал за дългосрочен наем или капиталова инвестиция в развиващ се район.

Подходящ за

✓семейно жилище

✓покупка с цел инвестиция

✓дългосрочно отдаване под наем

✓клиенти, търсещи ново строителство с гараж и топла връзка

За повече информация, детайли по проекта или организиране на оглед, се свържете с екипа на TRIVIUM ESTATE. Ще получите професионално съдействие през целия процес на покупка.

TRIVIUM ESTATE предлага безплатна консултация с нашия кредитен консултант и съдействие при кредитиране.

За повече интересни оферти и информация, харесайте или се абонирайте за нашите канали:

FB: https://www.facebook.com/share/15sHFtrVWj/?mibextid=wwXIfr

Instagram: https://www.instagram.com/triviumplovdiv/

TikTok: https://www.tiktok.com/@triviumestate?_t=ZN-8soOStpMjeI&_r=1

YouTube: http://www.youtube.com/@triviumestate

Или посетете нашият сайт:

https://trivium.bg/

Отговорен консултант: Айваз Рустем

Реф. номер 16709
Особености
Тухла
За контакт:
0896748861
Брокер:
Айваз Рустем
0896748861
Офис: Пловдив, бул. Христо Ботев 92Б, Рилон център, ет.4
Още оферти от брокера: Продава | Дава под наем | Купува | Наема
Агенция:
ТРИВИУМ ЕСТЕЙТ
0896878933
ТРИВИУМ ЕСТЕЙТ logo
Медал за прослужено време
В imot.bg от 2018 г.
trivium.imot.bg
Адрес:
област Пловдив, гр. Пловдив, бул.Христо Ботев 92Б - Рилон Център
ИЗПРАТИ ЗАПИТВАНЕ
ИЗПРАТИ ЗАПИТВАНЕТО

Продава 3-СТАЕН
град Пловдив, Гагарин
Обява: 1c177064679340527

188 400 €
368 478.37 лв.
История на цената
(1 557 €, 3 045.23 лв./m2)

Цената е с включено ДДС
ЗАПАЗИ ОБЯВАТА

Местоположение: град Пловдив, Гагарин

Допълнителни данни за имотите в района и сравнение с други райони

Покажи

Период

и 2 месеца

* Средните цени са определени чрез медианна стойност